Appartamento in Vendita
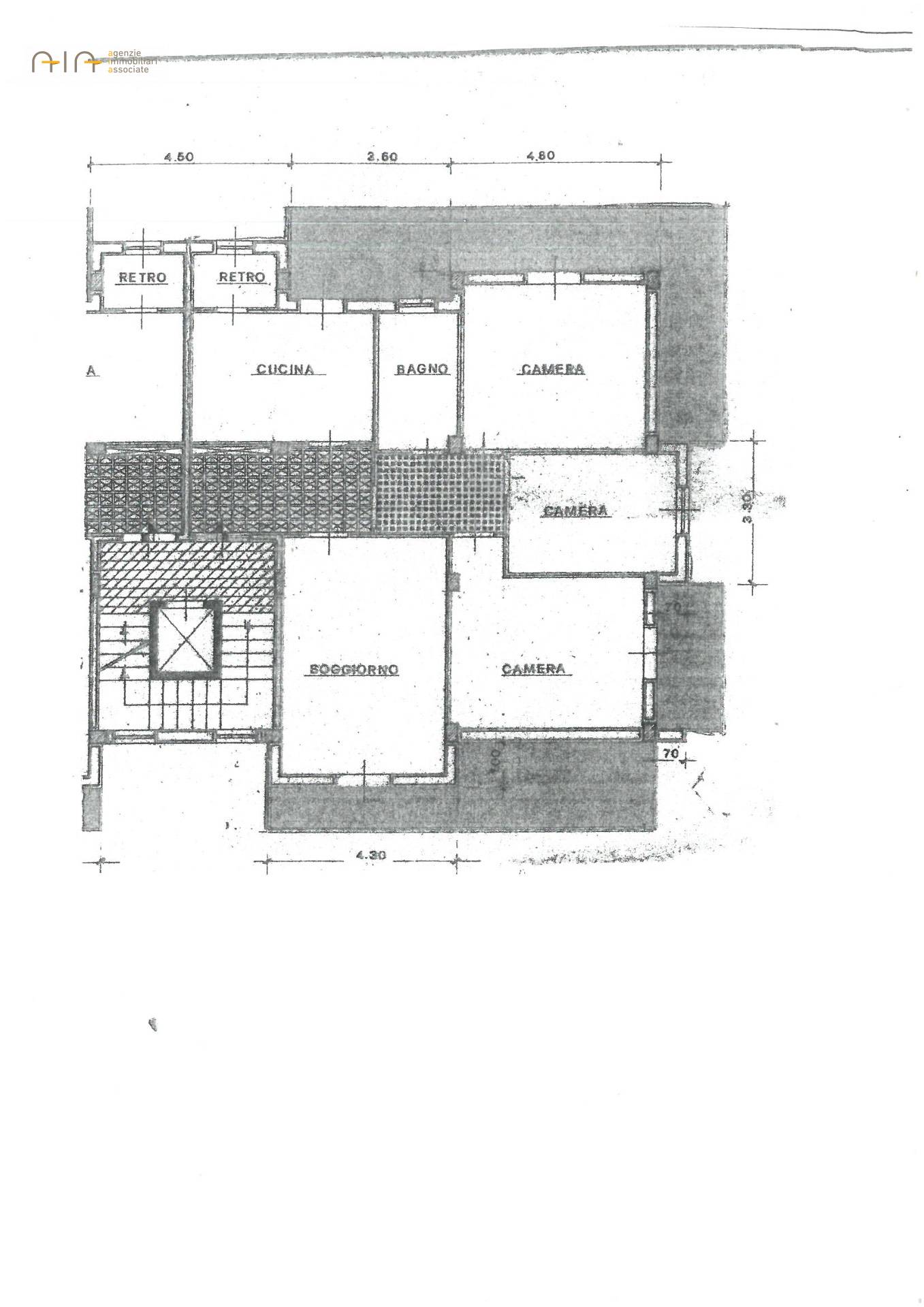
Luminoso Appartamento di 120 mq circa, posto al terzo piano -con ascensore- composto da ingresso, soggiorno, cucina con retro cucina, tre camere da letto matrimoniali, bagno con vasca e finestra, piccolo locale esterno e due balconi per 25 mq circa. Completano la proprietà un ripostiglio di 8 mq circa ed un garage di 17 mq circa, posti entrambi al piano sotto strada, con comodo scivolo di accesso.
L'Appartamento presenta finiture dell'epoca costruttiva, con pavimentazione in marmo nella zona giorno ed in mono cottura nella zona notte.
Gli impianti sono funzionanti e risalgono all'epoca costruttiva.
L'immobile si trova nelle vicinanze del centro di Castignano in una delle principali vie del paese, in zona molto servita.
Classe energetica
EP glnr: 162.50 kwh/㎡























