Ufficio / Studio Professionale in Vendita
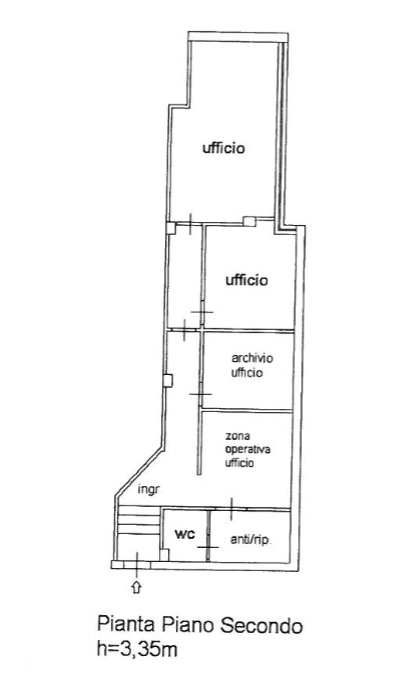
Ufficio delle dimensioni di 81 mq circa, sito al piano secondo, composto composto da ingresso su corridoio, tre spaziosi uffici, ampio vano archivio, antibagno, bagno e ripostiglio. L'ufficio in oggetto si presenta in perfette condizioni, con pavimentazione in parquet, infissi in alluminio con cristalli antisfondamento, portoncino blindato di ingresso, impiantistica completamente a norma, con rete computer Lan, impianto di aria condizionata caldo-freddo, pannelli solari a tetto posizionati su lastrico solare al piano superiore di proprietà esclusiva di 114 mq circa, presa telefono in tutte le stanze, disponibilità appurata di collegamento ADSL, bagno a norma. Fondamentale la presenza di un amplissimo parcheggio condominiale all'interno del complesso, a servizio di tutta la clientela. Localizzato in posizione comoda, lungo la strada statale Adriatica e non distante dall'uscita autostradale di Grottammare, è la soluzione ideale per qualsiasi esigenza professionale, ed altro.
>> Attualmente locato a referenziato professionista con canone di 300,00 euro al mese.
Classe energetica
IPe: 222.31 kwh/㎥






