Villa singola in Vendita
Vi presentiamo un'antica e prestigiosa villa che incarna il fascino e l'eleganza di tempi passati. Dislocata su tre livelli e con una superficie totale di 400 m², questa splendida dimora offre spazi generosi e una vista panoramica mozzafiato sul complesso montano dei Sibillini.
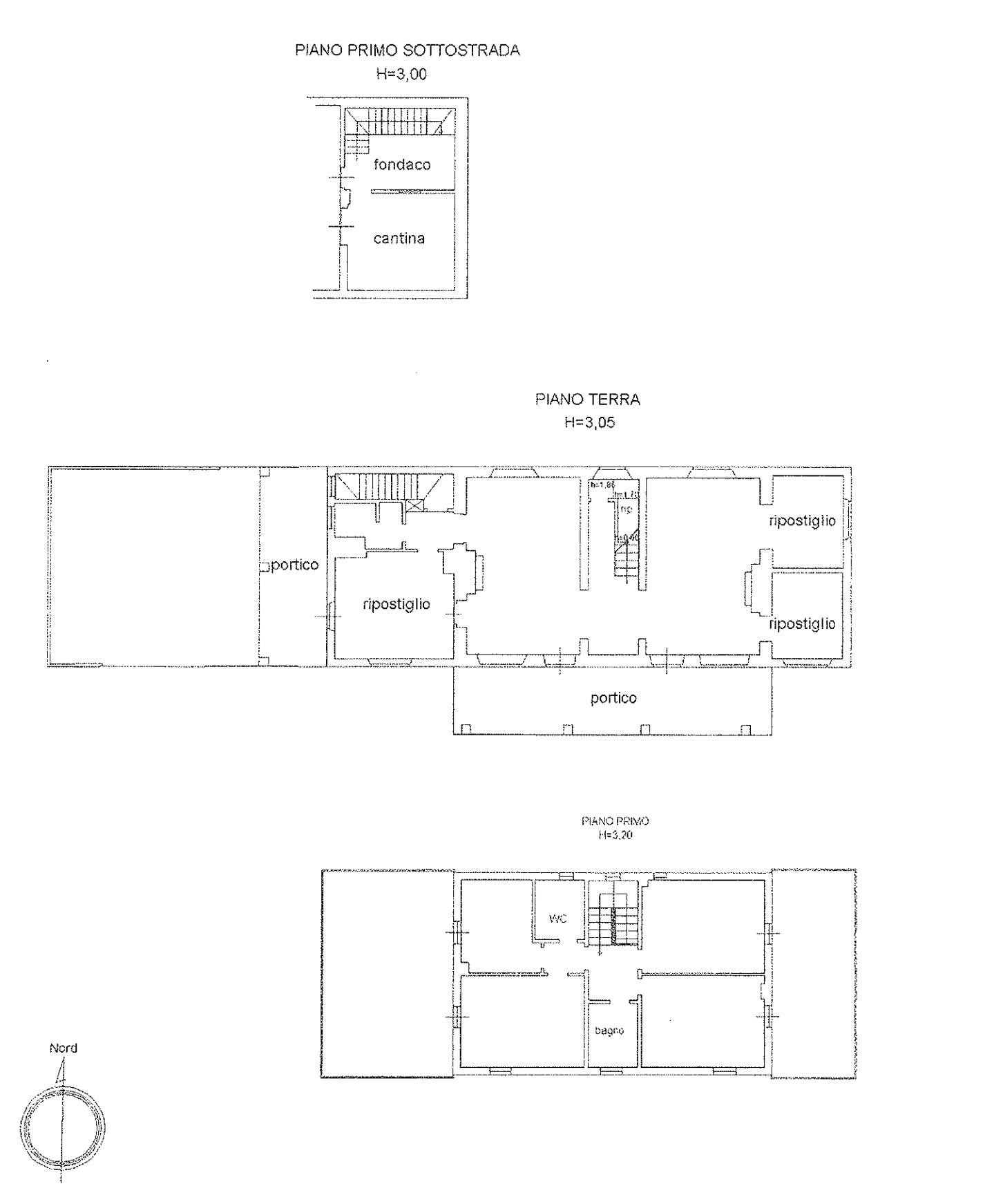
Al piano seminterrato, si trovano cantine, fondaci e un ampio garage in grado di ospitare fino a quattro autovetture. Il pianterreno, di 155 m², accoglie due ampi soggiorni, uno dei quali con sala da pranzo, una spaziosa cucina abitabile, due camere da letto, un bagno e una cantina. Un elegante ingresso e una scala conducono ai piani superiori.
Il primo piano, di circa 95 m², ospita quattro camere da letto, di cui tre matrimoniali, e due bagni. A questo livello, si trovano anche due ampie terrazze contrapposte, con una vista panoramica incantevole sulle montagne dei Sibillini. Al pianterreno, la villa è circondata su due lati da un porticato con colonne in travertino, che si affaccia su un'ampia terrazza con ulteriore vista panoramica. Il giardino circostante è ampio e curato, con un suggestivo gazebo.
A circa 10 metri di distanza dalla villa principale, troverete una dépendance indipendente su due livelli, con una superficie totale di 110 m². Al piano terra, ci sono locali cantine, mentre al primo piano si trova un piccolo alloggio con soggiorno e angolo cottura, una camera da letto matrimoniale, un bagno e un terrazzino panoramico con scala esterna.
L'intera proprietà è circondata da un parco recintato di 4100 m², con un grazioso vialetto d'ingresso e piante ornamentali che conferiscono un tocco di raffinatezza. Sia la villa principale che la dépendance hanno subito un completo e radicale restauro, sia internamente che esternamente. La villa è stata restaurata con l'utilizzo di materiali antichi e originali, come pavimenti in cotto e portali in travertino provenienti da antichi palazzi del centro storico di Ascoli Piceno. I camini in pietra e le finiture di alto livello arricchiscono ulteriormente l'intera proprietà. La dépendance si distingue per il tetto realizzato con una struttura in legno a capriate.
Opzionalmente, è possibile acquistare ulteriori 32.000 m² di terreno destinati a seminativi arborei con un sovrapprezzo di euro 60.000.
Posizionata in una zona tranquilla, panoramica e in altura, questa villa rappresenta un'opportunità ideale per vivere immersi nella tranquillità della campagna o per creare una struttura di accoglienza turistica di prestigio. Lasciatevi sedurre dal suo fascino storico e dalla sua eleganza senza tempo.














