Villino a schiera / bifamiliare in Vendita
Villino bifamiliare in corso di costruzione, dallo stile contemporaneo e pulito, sviluppato su due livelli per una superficie coperta complessiva di circa 135 m². Una soluzione moderna, pensata per chi cerca comfort, efficienza e spazi ben distribuiti, senza rinunciare alla vista mare.
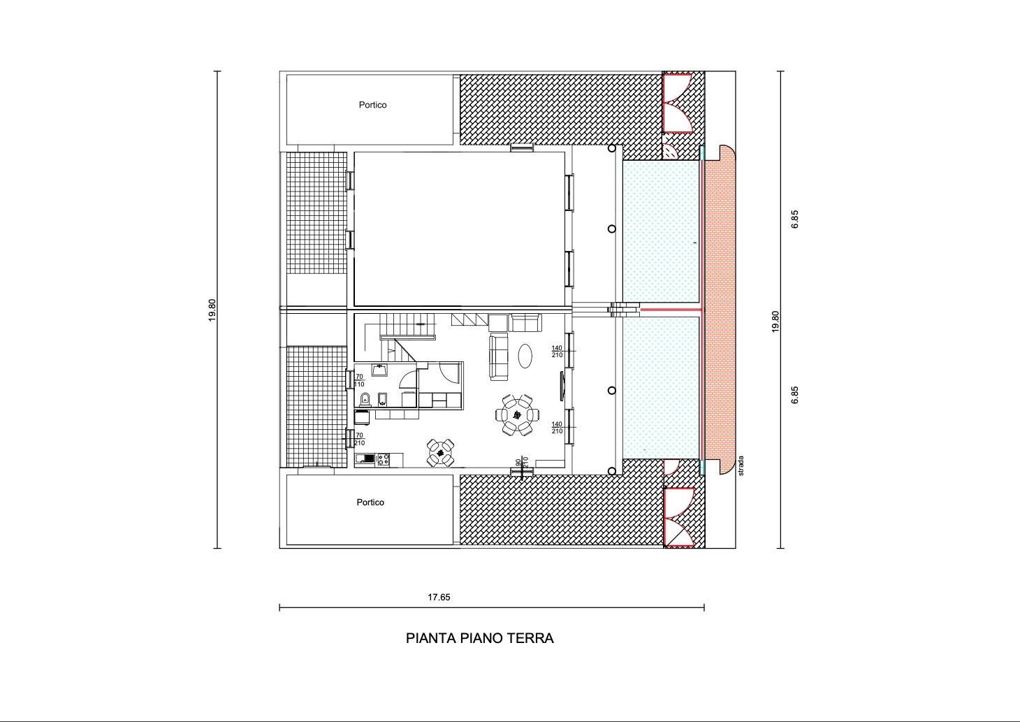
Al piano terra, di circa 66 m², l'ingresso conduce ad un ampio soggiorno luminoso con affaccio diretto sul giardino e una splendida vista aperta verso il mare, cucina abitabile separata, bagno e comodo antibagno ad uso lavanderia. Gli spazi sono razionali, vivibili e pensati per la quotidianità di una famiglia.
Il piano primo, di circa 70 m², collegato da una elegante scala interna in travertino, ospita tre camere da letto, di cui una matrimoniale con bagno en suite, due camere singole, un bagno principale e una terrazza panoramica con vista mare, oltre a balconi per una superficie complessiva di circa 55 m², veri e propri spazi da vivere all'aperto.
La proprietà è completata da una cortegiardino frontale di circa 20 m², da una corte posteriore di 18 m² e da un ampio garage fuori terra di circa 23 m², elemento sempre più raro e prezioso.
Le finiture sono di livello, curate nei dettagli: pavimentazioni in gres porcellanato effetto parquet, riscaldamento a pavimento, predisposizione per aria condizionata con split, impianto domotico per la gestione da remoto, predisposizione per impianto di allarme e impianto fotovoltaico da 3 kW, a garanzia di comfort ed efficienza energetica.
Inserito in un mini complesso residenziale immerso nel verde, in posizione riservata ma comoda ai servizi, questo villino rappresenta una proposta moderna e concreta, ideale per chi vuole abitare oggi guardando già al domani, con una vista mare e colline che fa davvero la differenza.
- Nessuna commissione a carico dell'acquirente.
Classe energetica
EP glnr: 58.00 kwh/㎡















































