Villino a schiera / bifamiliare in Vendita
In posizione centrale e privilegiata, a pochi passi da tutti i principali servizi e dal lungomare facilmente raggiungibile a piedi, proponiamo in Vendita un elegante villino a schiera di testa, libero su tre lati, che si distingue per le sue dimensioni generose, le rifiniture di altissimo livello e il grande spazio esterno curato nei minimi dettagli.
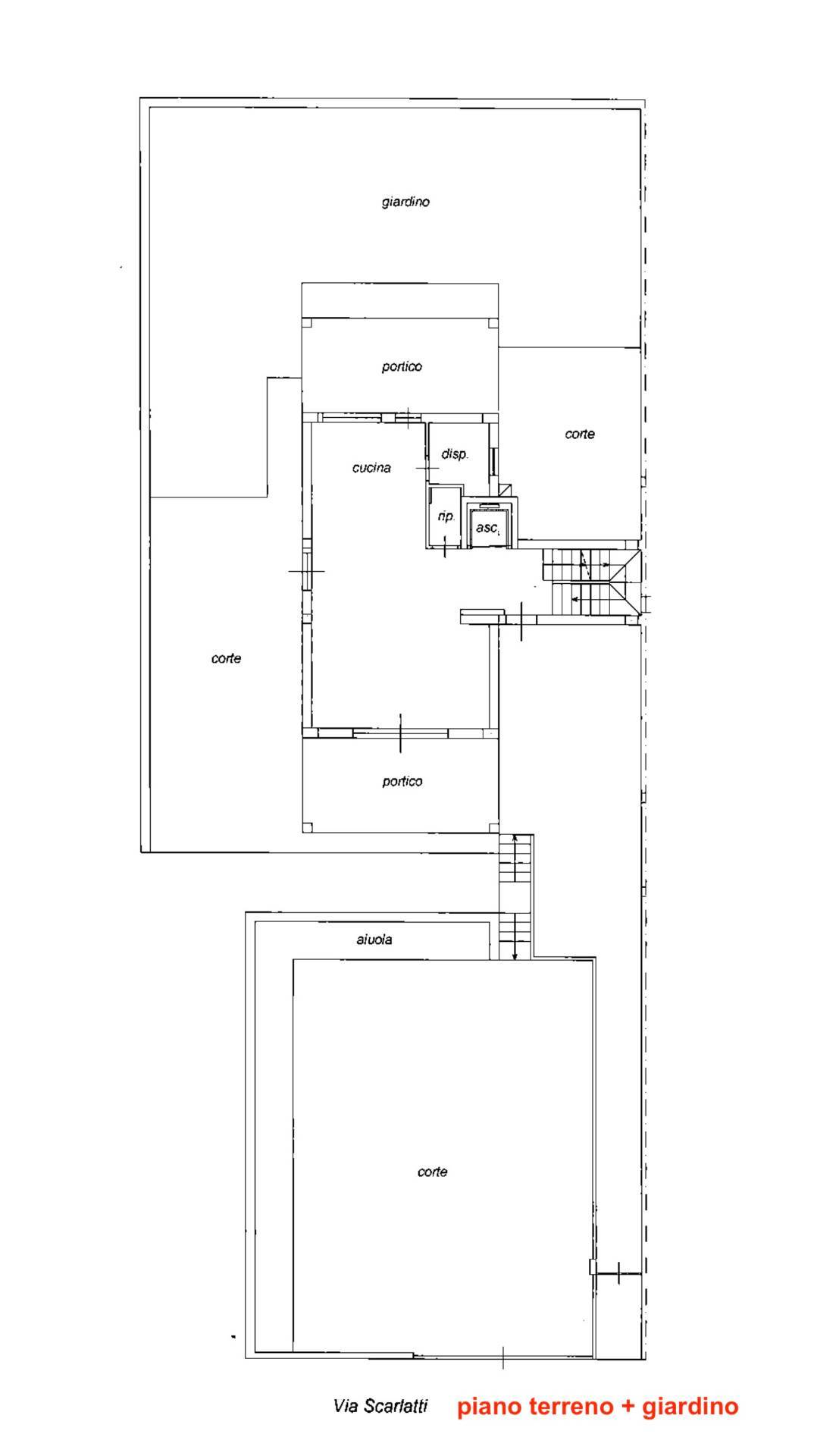
La proprietà si sviluppa su quattro livelli, collegati anche da un comodo ascensore interno. Al piano seminterrato, di circa 185 m², si apre una luminosa e accogliente taverna con cucina, affiancata da tre ampie stanze, due bagni finestrati, un garage capace di ospitare due autovetture e un corridoio con scala di accesso ai piani superiori. Il piano terra, di circa 70 m², è dedicato alla zona giorno, con un ingresso che conduce a un salotto spazioso e luminoso, una cucina abitabile con dispensa e un bagno di servizio. All'esterno si trovano due porticati di oltre 30 m² e un magnifico giardino di circa 433 m², in parte allestito a verde con prato all'inglese e palme ad alto fusto, in parte pavimentato e organizzato come parcheggio privato per quattro autovetture.
Salendo al primo piano, anch'esso di circa 70 m², si incontra la zona notte composta da tre camere da letto, di cui due matrimoniali e una singola. La camera padronale è dotata di bagno en suite, mentre un ulteriore bagno serve il piano. Gli ambienti sono completati da due terrazzi abitabili per complessivi 30 m² e da un balcone centrale che impreziosisce la facciata. Al secondo piano, troviamo invece il sottotetto, circa 30 m² da adibire a locale polifunzionale, arricchito da una splendida terrazza perimetrale di 48 m² con gazebo, ideale per momenti di relax all'aperto.
Realizzato appena otto anni fa, il villino si presenta in condizioni eccellenti, pari al nuovo, con finiture tutte extra capitolato: pavimenti in parquet di rovere su tutta la superficie, riscaldamento a pavimento, climatizzazione, impianto di deumidificazione, controsoffittature con illuminazione diffusa a luce calda, bagni rivestiti in mosaico e una moderna domotica che consente la gestione di vari servizi anche da remoto. L'esterno, rifinito in mattoncino faccia a vista, richiama uno stile neoclassico elegante e senza tempo.
Il prezzo di Vendita include le cucine già installate e diversi accessori distribuiti all'interno della villa, rendendo questa proposta ancora più completa e pronta per essere abitata.
Classe energetica
EP glnr: 44.97 kwh/㎡










































































































































