Casale Colonico Rustico in Vendita
Monsampolo del Tronto - Centrale / Centro Storico (vecchio Incasato Medievale)
Codice: 33521
Immerso nel verde delle colline marchigiane e a pochi minuti dal mare, proponiamo in Vendita un casale colonico di ampie dimensioni, dotato di corte esclusiva e meravigliosa vista panoramica. L'immobile, distribuito su tre livelli fuori terra, è stato completamente ristrutturato all'esterno e, in buona parte, anche all'interno, risultando in condizioni perfettamente abitabili per gran parte della superficie. È attualmente suddiviso in due unità abitative indipendenti, ciascuna con il proprio ingresso così composta:
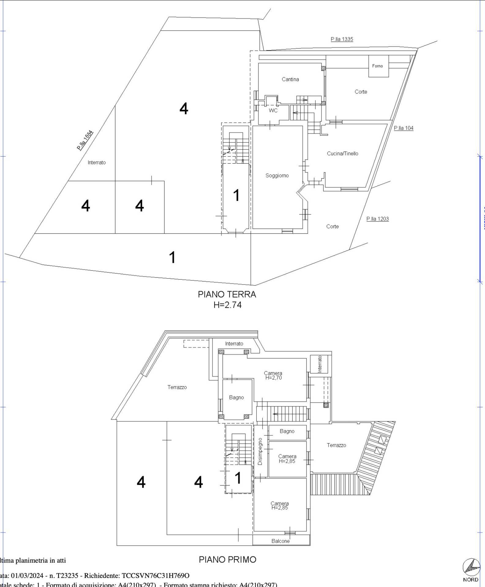
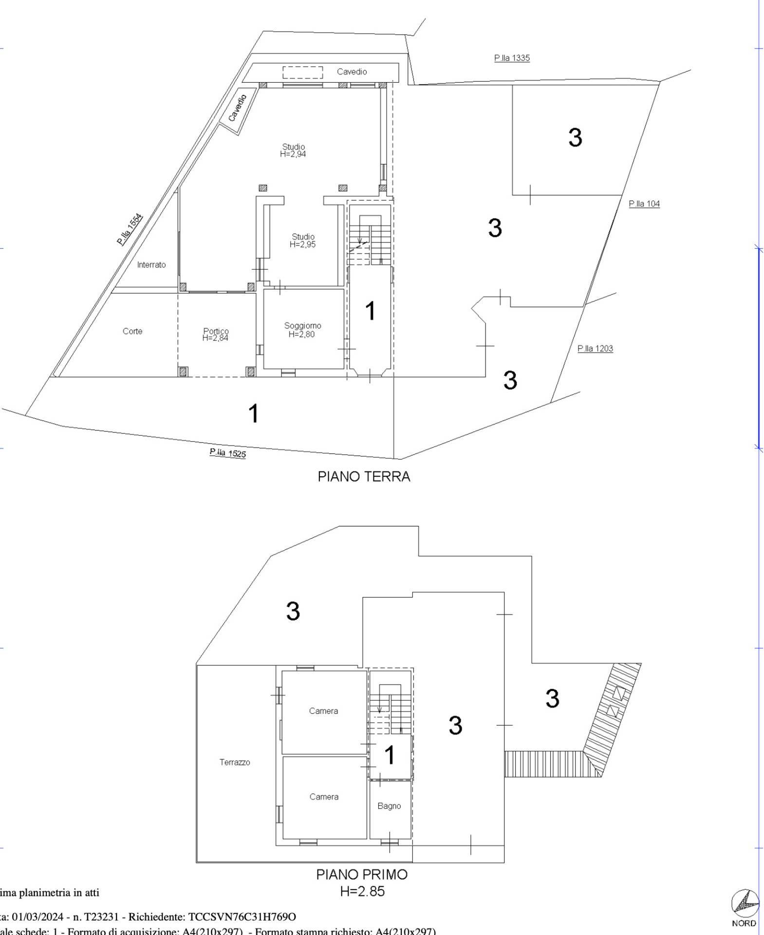
- Piano Terra (circa 300 m²): ingresso principale, ampio soggiorno, grande cucina abitabile, bagno e quattro ulteriori vani allo stato grezzo, ideali per ampliare l'abitazione o realizzare un secondo appartamento con accesso indipendente. Completa il piano un elegante porticato, perfetto per godersi l'esterno in ogni stagione.
- Piano Primo (circa 128 m²): ampia camera matrimoniale, spazioso bagno, corridoio, due vani allo stato grezzo e due terrazze panoramiche per un totale di circa 40 m².
- Piano Secondo Soffitta (circa 104 m²): sottotetto allo stato grezzo, suddiviso in tre ambienti, da rifinire secondo le proprie esigenze.
All'esterno, la proprietà dispone di una corte privata recintata e pavimentata, con elegante cancello carrabile e spazio utilizzabile anche come comodo parcheggio. Il casale è circondato inoltre da un terreno agricolo di circa 2.263 m².
Situato ai piedi del centro storico di Monsampolo del Tronto, in una zona tranquilla ma servita, l'immobile è ideale sia come residenza principale per una o due famiglie, sia come investimento turistico o casa vacanze, grazie alla vicinanza sia al mare che ai monti.
Possibilità di pagamento personalizzato:È possibile concordare il pagamento del prezzo anche in due anni, tramite un contratto preliminare di compraVendita e successivo atto notarile.
€ 230.000
Classe energetica
E
EP glnr: 177.06 kwh/㎡
Informazioni immobile
Codice 33521
Contratto Vendita
Tipologia Casale Colonico Rustico
Regione Marche
Provincia Ascoli Piceno
Comune Monsampolo del Tronto
Zona Centrale / Centro Storico (vecchio Incasato Medievale)
Prezzo € 230.000
Totale mq 310 mq
Camere 5
Bagni 4
Locali 10
Stato conservazione Buono
Piano 0011
Piani totali 3
Riscaldamento Autonomo
Assenza barriere architettoniche Si
Età costruzione 1950
Stato attuale Libero al rogito
Disponibile Si
Balconi Presente
Terrazzo Presente, 40 mq
Giardino Privato
Cucina A Vista
Arredato Non arredato
Posizione Zona agricola
Animali ammessi Si
Caratteristiche
Impianto Elettrico A norma
Conformazione Libera su tutti i lati
Tipo ristrutturazione Semitotale, di molte parti
Qualità e pregio dell'immobile ★★★
Finiture interne ★★★
Qualità contesto e luogo ★★★
Bagno principale con Doccia
Bagno secondario con Doccia
Pavim. Reparto Giorno Monocottura / gres porcellanato
Pavim. Reparto Notte Monocottura / gres porcellanato
Balcone abitabile
Camino o canna fumaria
Ingresso autonomo
Adatto ad operazioni immobiliari d'impresa
Allestimento del giardino o del terreno Verde + pavimentato
Vista panoramica
Immobile idoneo per più nuclei familiari per 2 famiglie
Impianto di riscaldamento a norma
Tipologia di proprietà normale proprietà
Aria condizionata Presente solo nelle camere
Pannelli solari termici Non presenti
Ubicazione immobile



























































