Casa cielo - terra in Vendita
Interessante proprietà composta da TRE unità immobiliari cielo-terra, adatta per tre famiglie, con corte esclusiva e possibilità di terreno agricolo. PANORAMICISSIMA!!!
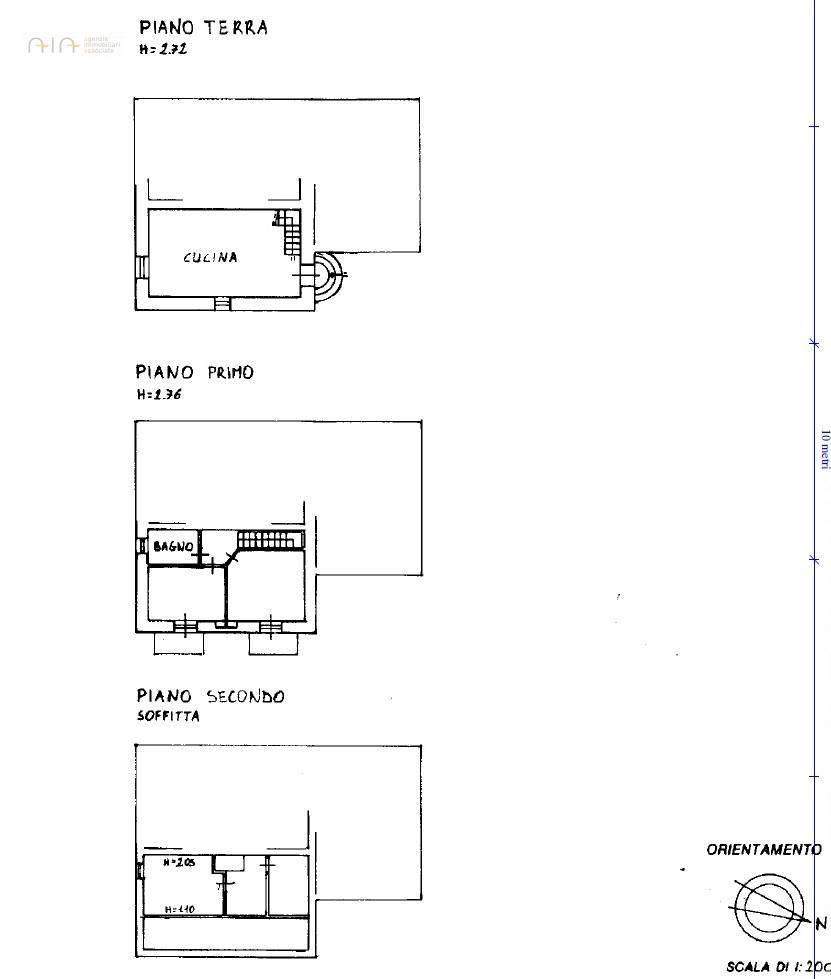
Casa indipendente posta su due livelli oltre sottotetto abitabile di complessivi 330 mq circa. Le abitazioni, di circa 110 mq ciascuna, si sviluppano su tre livelli, ognuna con ingresso indipendente: il piano terra ospita la zona giorno, il piano primo la zona notte e soffitta al piano secondo sottotetto; .
Ogni unità immobiliare è composta da soggiorno con angolo cottura al piano inferiore, due camere da letto con bagno e balconi al piano superiore, soffitta.
Completa la proprietà un giardino di pertinenza comune di circa mq 800 interamente recintato con cancello d'ingresso pedonale e carrabile, piante di ulivo, da frutto ed ornamentali; con prezzo da computare a parte è possibile acquistare del terreno agricolo.
Due unità immobiliari sono abitabili da subito, si presentano con materiali, finiture ed impianti risalenti all'epoca costruttiva e necessiterebbero solo di piccoli lavori di ordinaria manutenzione. Tutti gli impianti sono funzionanti, da controllare, ed eventualmente, aggiornare alle recenti normative. Le pavimentazioni sono in monocottura nella zona giorno e nella zona notte; finestre, con vetro doppio, in legno così come le porte interne, persiane in alluminio. Un'abitazione risulta da ultimare.
Facilmente raggiungibile, è l'ideale per chi cerca spazio e riservatezza, godendo di un ampio panorama.
A circa 8 Km dal centro cittadino di Comunanza e a soli 20 Km da Ascoli Piceno, questa abitazione è perfetta per ospitare fino a tre famiglie e viverci stabilmente.
Posizionata all'interno di una piccola frazione, localizzazione molto panoramica e comoda; grazie alla sua posizione rialzata, dai suoi affacci si può godere della vista dei boschi circostanti fino allo splendido scenario dei Monti Sibillini.
Classe energetica
EP glnr: 262.93 kwh/㎡





























































