Locale Artigianale / Deposito in Vendita
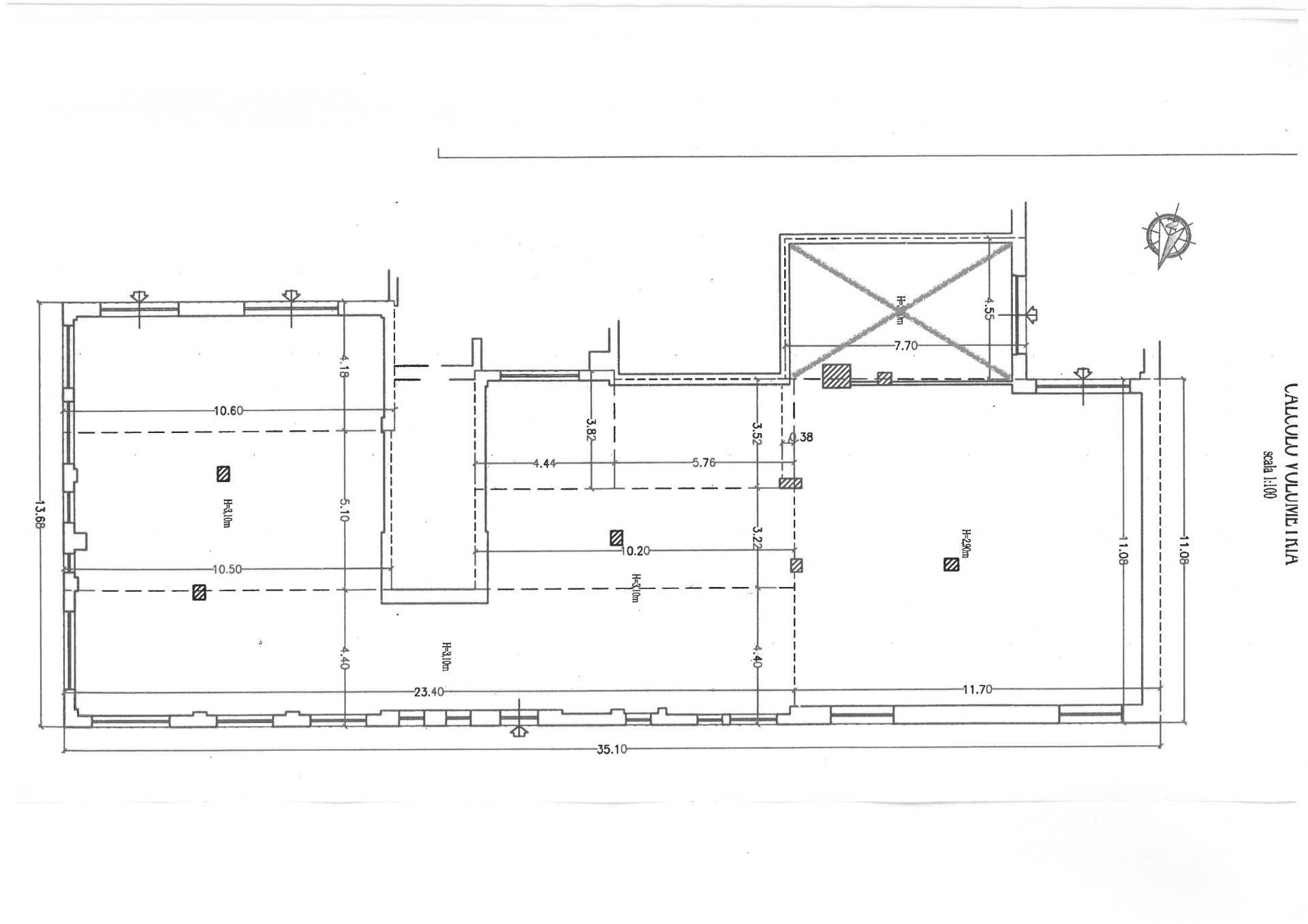
Locale al Piano Terra a destinazione magazzino, delle dimensioni di 400 mq. circa, composto da un unico ampio vano fornito anche di doppio scivolo per accesso anche carrabile (sia all'interno sia dall'esterno).
Il locale - attualmente allo stato grezzo interno e con altezza di mt. 3,10 / 2,90 - è dotato lungo il suo perimetro di numerose vetrine e finestre sia a terra sia a parapetto, che lo rendono facilmente trasformabile, oltre che in autorimessa per molteplici autovetture, anche per essere suddiviso in più unità immobiliari con destinazione civile abitazione, uffici direzionali o studi professionali.
Occupa l'intero piano terra di una palazzina ubicata alle spalle del complesso residenziale "PARCO DAMIANI", a breve distanza dall'Ospedale e dai servizi di Viale A. De Gasperi.
 
     
                 
    
    
     
                                            
                                                                         
                                            
                                                                         
                                            
                                                                        



















