Locale Artigianale / Deposito in Vendita
Complesso produttivo, completamente ristrutturato post-sisma nel 2024, per una superficie coperta di complessivi 2700 mq su due livelli.
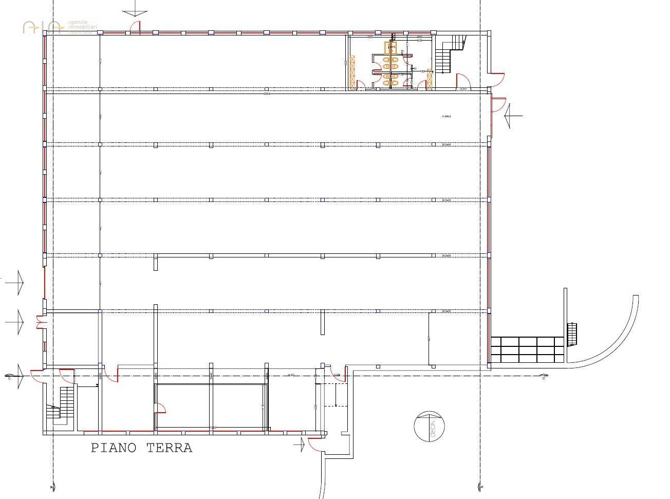
Il piano terra, di 1350 mq, è composto da zona destinata a laboratorio e magazzino (H. mt 3,60) per 1200 mq circa e zona mensa, servizi igienici e spogliatoi per circa 160 mq.
Il piano superiore, di pari dimensioni, è adibito a laboratorio per circa 1200 mq (H. mt 3,30) e uffici e servizi per complessivi 160 mq.
Esternamente troviamo una corte di pertinenza completamente recintata, in parte asfaltata e in parte sistemata a verde e parcheggi privati, di circa 6000 mq, in cui è presente anche in annesso.
Il capannone è stato realizzato con accorgimenti tecnico strutturali funzionali e completamente a norma, così come sono state rispettate tutte le direttive in materia antinfortunistica ed antisismica.
Al servizio nel fabbricato è stata realizzata una cabina elettrica.
Vista la posizione, lo stato e la consistenza dell'intero immobile compresi gli accessori annessi e la sistemazione esterna delle aree destinate a parcheggio e verde, questa proprietà è ideale per iniziare o spostare un'attività artigianale o industriale in zona comoda e ben servita.
Localizzato in posizione periferica, comunque in zona artigianale/produttiva, risulta facilmente raggiungibile, sia per la clientela che per i fornitori stessi, grazie alla vicinanza alla SS78 Picena (2 Km circa), e quindi alla superstrada SS77 Val di Chienti, che collegano facilmente l'immobile all'autostrada A14, alla città di Macerata ed Ascoli Piceno oltre che al versante tirrenico.















































