Appartamento in Vendita
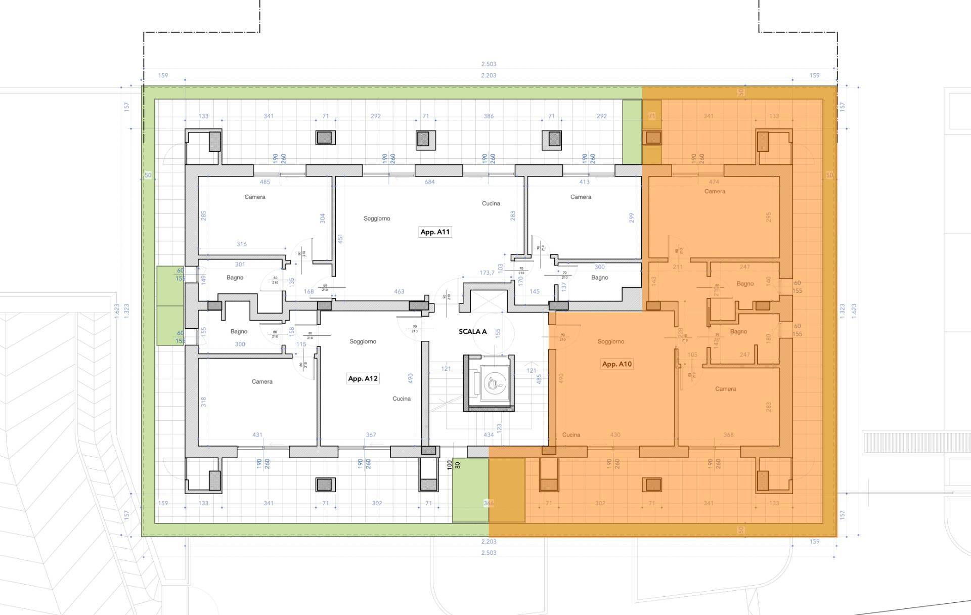
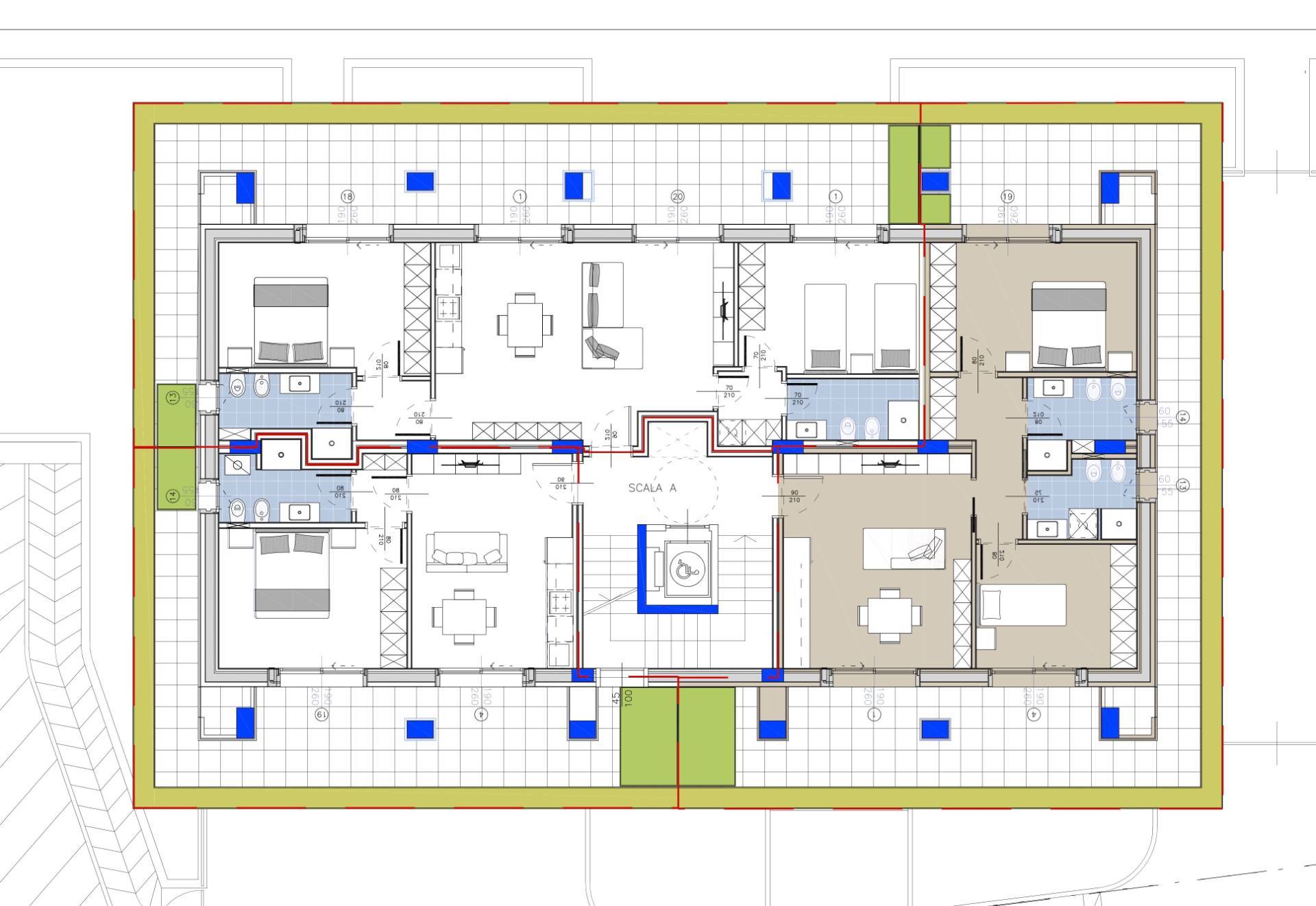
In prestigioso complesso residenziale, proponiamo un Appartamento di 75 m² al quarto piano, composto da ingresso su ampio soggiorno con angolo cottura, due camere da letto (una matrimoniale e una spaziosa singola), due bagni finestrati con doccia, e un pratico disimpegno nella zona notte. L'unità è completata da una terrazza a loggia esterna coperta di 71 m², ideale per godere della bella stagione in totale privacy.
L'immobile, pronto per essere abitato, vanta rifiniture di alto livello, con pavimentazione in parquet di rovere su tutta la superficie, infissi Schüco certificati, e un impianto di riscaldamento e raffrescamento canalizzato, regolabile in remoto tramite app, con temperatura personalizzabile in ogni stanza. Situato all'interno di un elegante edificio di cinque piani, l'Appartamento fa parte del rinomato complesso residenziale Caroselli Garden House, accessibile esclusivamente ai residenti attraverso tastierino numerico.
L'intero complesso è circondato da un bellissimo giardino interno, arricchito da piante su tutte le balconate e logge esterne, con sistema di irrigazione centralizzato. Realizzato in classe energetica Nzeb (Near Zero Energy Building), l'edificio è progettato per garantire il minimo consumo energetico, grazie a soluzioni innovative come l'impianto fotovoltaico centrale da 44 kW, cappotto esterno e ottimizzazione dell'irraggiamento solare.
Posizione ideale: L'Appartamento è situato in zona centrale, a pochi passi da scuole, banche, farmacie, supermercati e a soli 650 metri dal mare. Un'opportunità unica per chi cerca un immobile di grande prestigio, con un impatto estetico eccezionale, arricchito dalla suggestiva illuminazione notturna che caratterizza l'intero complesso.
Note:
- Possibilità di acquistare un garage a partire da €42.000, con predisposizione per la ricarica di auto elettriche (prezzo separato).
- Possibilità di acquistare una cantina a partire da €10.000 (prezzo separato).
- Possibilità di acquistare un posto auto esterno all'interno del complesso a partire da €26.000 (prezzo separato).
Classe energetica
EP glnr: 16.90 kwh/㎡










































































