Appartamento in Vendita
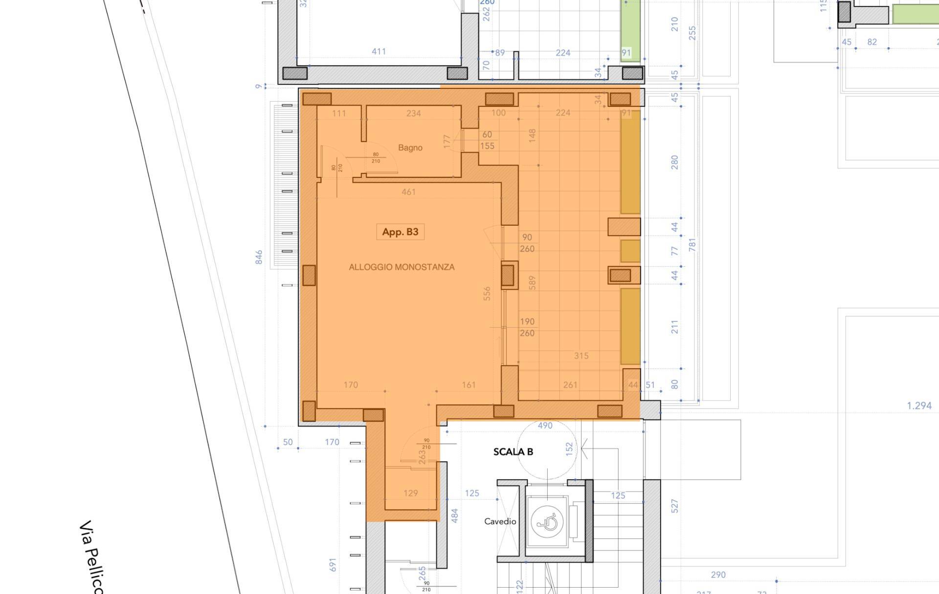
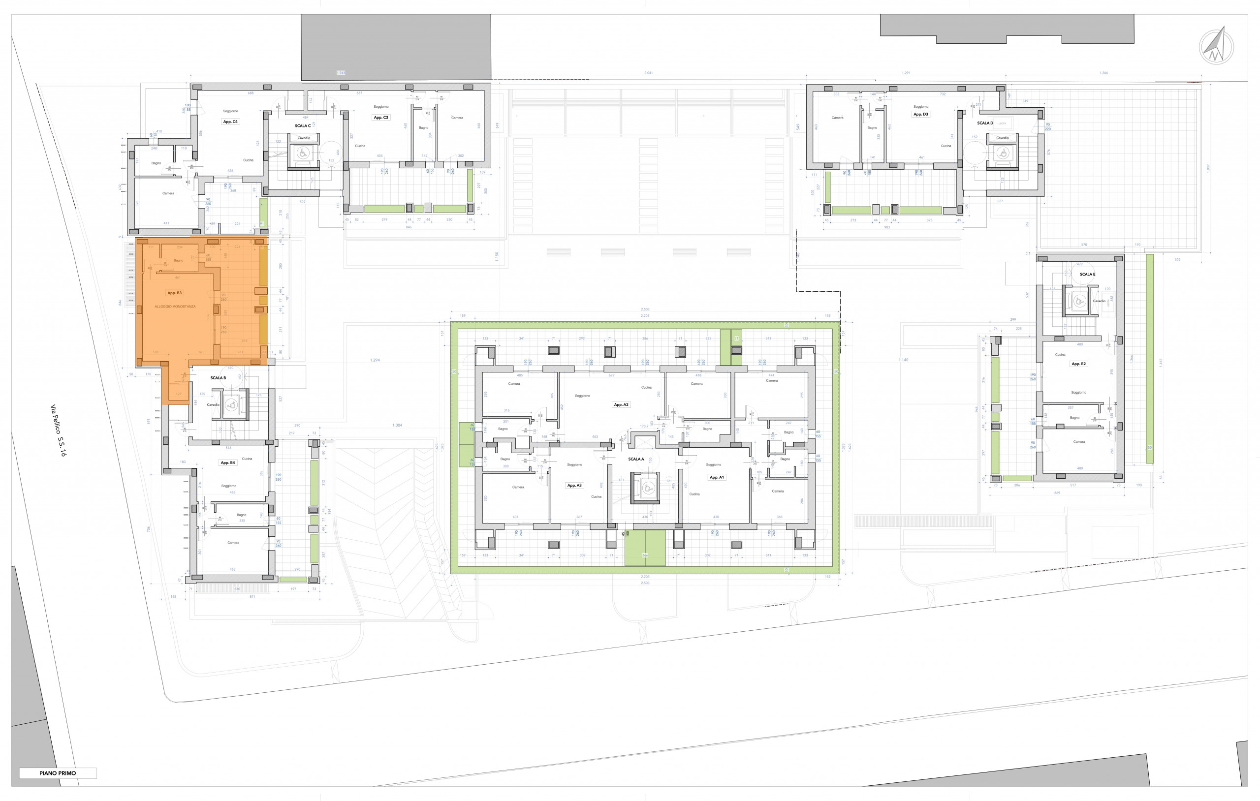
Appartamento monolocale sito al primo piano, con una superficie di circa 48 m², composto da ingresso su corridoio, ampio soggiorno con angolo cottura e zona notte, un bagno finestrato e un ripostiglio lavanderia. L'Appartamento è inoltre dotato di una terrazza a loggia coperta di circa 26 m², perfetta per soggiornare all'aperto durante la bella stagione.
L'immobile, pronto per la consegna, è rifinito con pavimentazione in parquet di rovere su tutta la superficie, infissi certificati Schüco e impianto di riscaldamento e raffrescamento canalizzato, con controllo tramite app da remoto e temperatura regolabile in ogni stanza. L'unità fa parte di una piccola palazzina di soli tre piani, inserita nel prestigioso complesso residenziale Caroselli Garden House, una soluzione abitativa esclusiva e accessibile solo ai residenti, grazie al tastierino numerico d'ingresso.
L'intero complesso è circondato da un meraviglioso giardino interno, con piante su tutte le balconate e logge esterne, irrigato tramite un sistema centralizzato con accumulo d'acqua. Inoltre, l'edificio è stato progettato secondo i principi della classe energetica Nzeb (Near Zero Energy Building), grazie all'impianto fotovoltaico centralizzato da 44 kW e ad altri accorgimenti come cappotto esterno, gestione dell'irraggiamento naturale e ombreggiatura tramite balconi aggettanti.
La posizione centrale consente di accedere facilmente a scuole, banche, farmacie, supermercati, e dista circa 650 m dal mare. Questa soluzione è perfetta per chi cerca un immobile di grande prestigio, con un design esclusivo e una suggestiva illuminazione notturna che rende l'intero complesso unico.
Note:
- Con prezzo da computare a parte, è possibile acquistare un comodo garage a partire da €42.000, con predisposizione per la ricarica di auto elettriche.
- Con prezzo da computare a parte, è possibile acquistare una comoda cantina a partire da €10.000.
- Con prezzo da computare a parte, è possibile acquistare un posto auto esterno, sempre all'interno del complesso, al costo di €26.000.
- Nessuna commissione a carico dell'acquirente.
Classe energetica
EP glnr: 21.67 kwh/㎡




















































































