Albergo / Residence / Struttura Ricettiva in Vendita
L'Hotel Nausicaa, dotato di una struttura moderna, è situato in eccellente posizione a pochi metri dalla spiaggia di sabbia finissima, e dal suo meraviglioso lungomare alberato e da una bellissima e comodissima pista ciclabile, che collega i numerosi stabilimenti balneari, organizzati con ristoranti, zone ricreative ed attrezzature da mare.
L'Hotel Nausicaa è articolato su 5 livelli, tutti collegati da ascensore, per complessivi mq 1.394 circa, è così suddiviso:
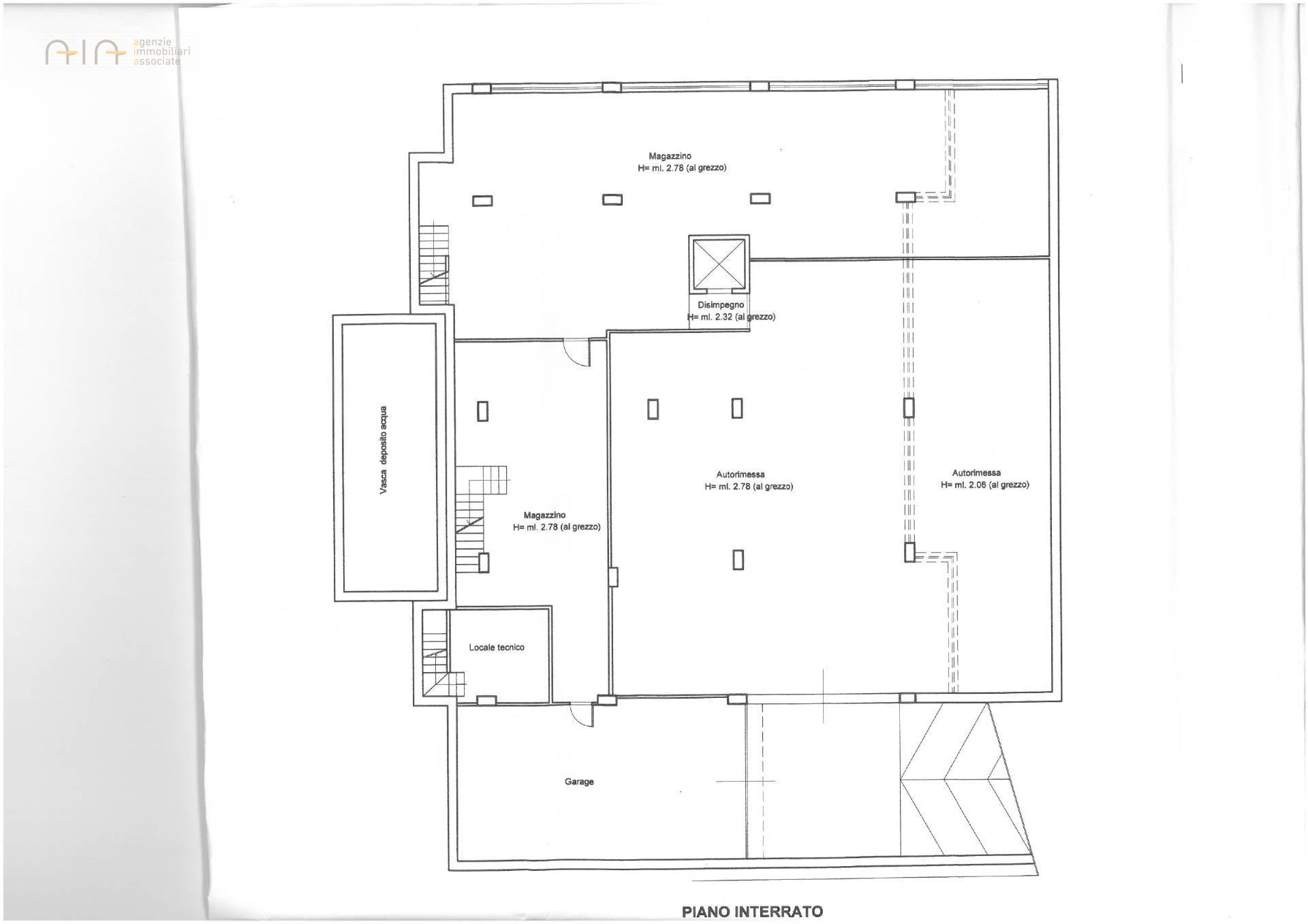
- piano seminterrato di mq 446 circa, dotato di due corpi con due accessi, uno di mq 394 e l'altro di mq 52, adibiti ad autorimessa con circa 15 posti auto e vari locali tecnici;
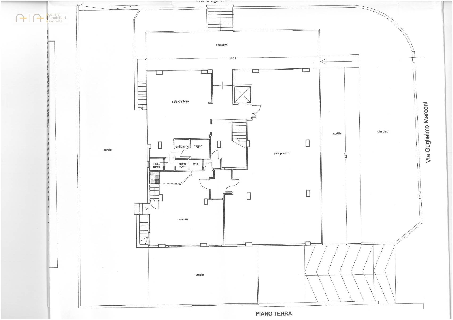
- piano rialzato di mq 264 circa, costituito da una Hall con angolo bar, un'ampia sala da pranzo, ampia cucina attrezzatissima, n 2 servizi igienici, ampio terrazzo all'ingresso, corte esterna al fabbricato (in parte pavimentata ed in parte giardino), parcheggio di utilità logistica nei pressi della cucina;
- ai piani primo e secondo di complessivi mq 456 circa sono distribuite n. 22 camere di media grandezza, ciascuna con bagno privato, e su ciascun piano, a servizio delle camere stesse, un balcone perimetrale continuo su tre lati ed uno staccato sul quarto lato, di complessivi mq 85 circa per ciascun piano;
- piano terzo sottotetto di mq 228 circa, attualmente allo stato grezzo.
L'Hotel, dotato delle finiture dell'epoca costruttiva, realizzate intorno agli anni '90, si presenta in buono stato di manutenzione.
L'intero piano terra, sala pranzo-cucina-hall, è dotato di climatizzazione, mentre i piani superiori sono dotati della sola predisposizione.
Classe energetica
EP glnr: 413.04 kwh/㎡


























