Appartamento in Vendita
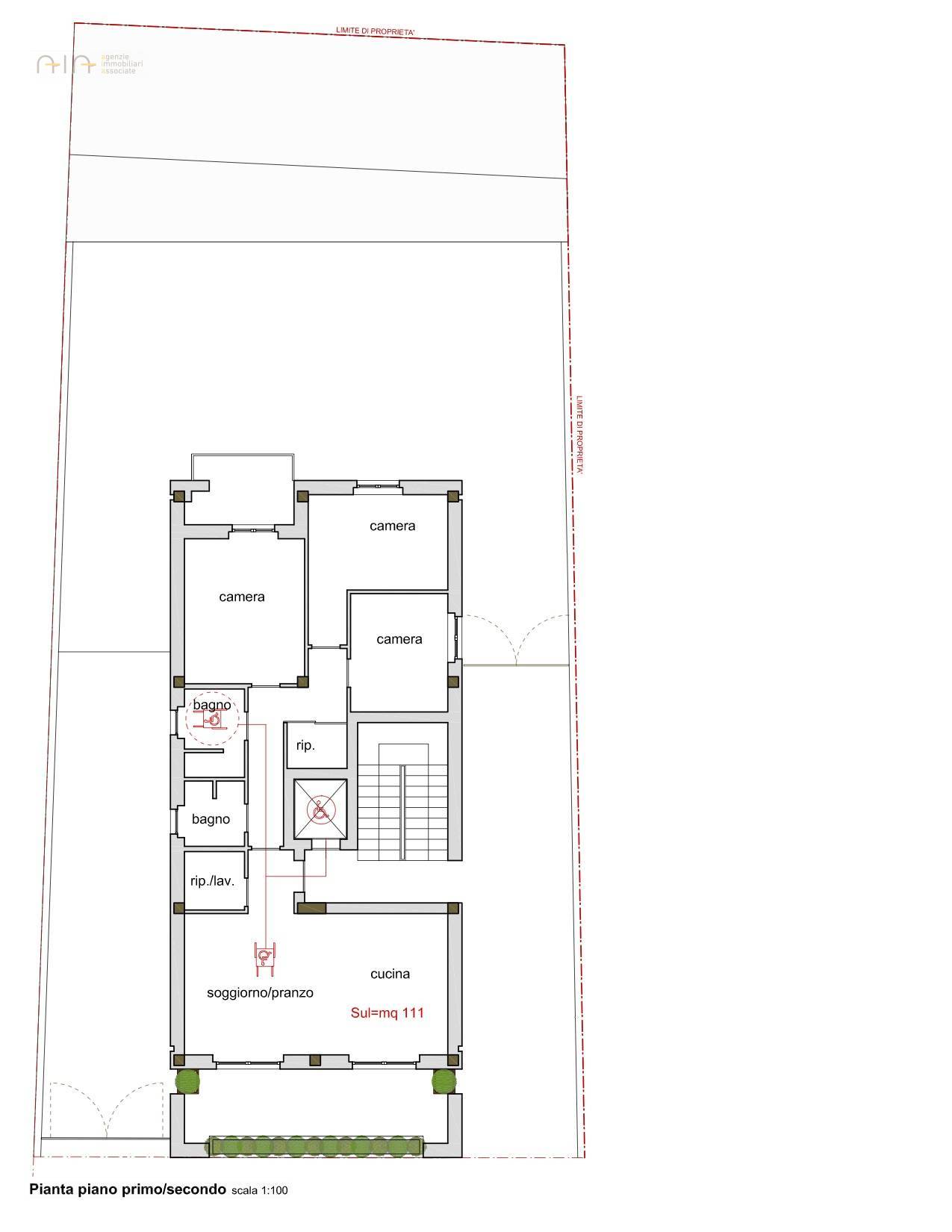
Appartamento di nuova costruzione sito al piano secondo delle dimensioni di 110 m² circa, con ascensore, composto da ingresso su ampio soggiorno con zona cucina, tre camere da letto (una matrimoniali e due camere), due bagni, due balconi di 27 mq circa (con fioriere e lavandino), lavanderia e ripostiglio. Completa la proprietà un garage di 18 mq circa.
L'Appartamento sarà rifinito con materiali di alta gamma completamente a scelta della parte acquirente su ampio capitolato.
L'immobile è ad alta efficienza energetica.
Inserito all'interno di un nuovo ed elegante fabbricato residenziale composto da sole tre unità abitative, con un design molto originale.
Localizzato in una delle posizioni più comode e centrali di San Benedetto con vicinanza a tutti i principali servizi.
Le pareti esterne saranno realizzate con blocco termico e rivestite con cappotto.
Le finestre realizzate in pvc/alluminio termo acustico e dotate di tapparelle elettriche.
Il portoncino di accesso all'alloggio sarà in classe 3 "blindata".
Gli impianti idrici e termici saranno autonomi e NON verrà installato il Gas-metano, l'unità abitativa sarà dotata di impianto di riscaldamento del tipo "a pavimento" e di un serbatoio per acqua calda sanitaria 200/300 litri ed una pompa di calore dimensionata all'Appartamento.
Risparmio energetico, edificio in classe A, bassi costi di gestione, comfort ai massimi livelli con isolamento termo acustico.
Edifico di prestigio con originale design, diversi terrazzi coperti e vivibili ed estrema cura nei particolari.
La consegna degli immobili è prevista per dicembre 2025.













